Мы используем "cookies". Продолжая просмотр, Вы принимаете Пользовательское соглашение и Политику обработки персональных данных.

5 597 объектов недвижимости Ярославля

Сдать офис, помещение под офис за 135 000 рублей в месяц, Малая Пролетарская улица, д.зд18а

135 000 Р в месяц

(в у.е.)

1 667 $ | 1 435 €
курсы валют
  • 225.00 м2

    Общая

  • 2 из 4

    Этаж

Ярославская область, Городской округ Ярославль, Ярославль, Малая Пролетарская улица, д.зд18а

на карте

Ярославский р-н

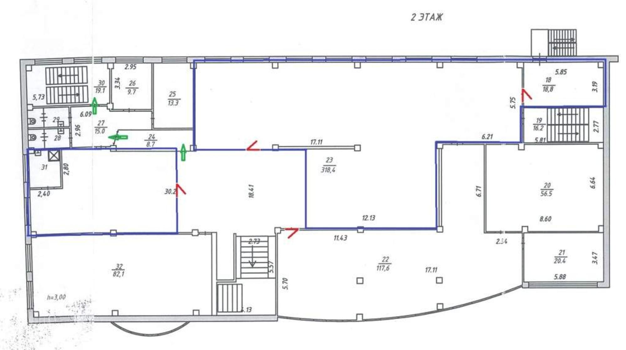
Сдаются в аренду офисные помещения на втором этаже административного здания с косметическим ремонтом. Имеется отдельная входная группа с ул. Малая Пролетарская.
Текущая планировка отражена на плане помещений. Имеется возможность изменения конфигурации помещений.
Пол - плитка.
Потолок - армстронг, высота 3 метра.
Сан. узел на этаже
Отдельный ввод э/э 40 кВт.
Парковка на внутренней территории (50 мест) предоставляется арендатору. Аренда от юридического лица, без НДС, отдельно оплачивается
... развернуть

Информация по объекту недвижимости, собственниках, обременениях и аресте, выписка ЕГРН.
Перед заказом уточните у продавца по телефону точный адрес до квартиры или кадастровый номер.

Характеристики

  • Этаж 2
  • Этажей всего 4
  • Высота потолков 3 м

Похожие предложения

офис 34 кв м, этаж 4/4 ул Промышленная, 1

18 000 Р

ул Промышленная, 1

офис 35 кв м, этаж 2/5 Корабельная улица, 1

17 500 Р

Корабельная улица, 1

офис 100 кв м, этаж 2/5 Угличская улица, 39

90 000 Р

Угличская улица, 39

офис 206 кв м, этаж 1/5 ул Свободы, 2

473 010 Р

ул Свободы, 2

офис 12 кв м, этаж 1/12 Ленинградский проспект, 85

19 000 Р

Ленинградский проспект, 85

офис 77.5 кв м, этаж 3/8 Победы улица, д.14а

115 000 Р

Победы улица, д.14а

офис 12 кв м, этаж -1/10 улица Саукова, 10

204 000 Р

улица Саукова, 10

офис 730 кв м, этаж 2/2 Корабельная улица, 1 с7

290 053 Р

Корабельная улица, 1 с7

офис 52 кв м, этаж 3/8 Победы улица, д.14а

80 000 Р

Победы улица, д.14а

офис 730 кв м, этаж 2/2 Корабельная улица, д.1

290 000 Р

Корабельная улица, д.1

офис 100 кв м, этаж 1/8 Ленина проспект, д.61а

100 000 Р

Ленина проспект, д.61а

офис 15 кв м, этаж 2/2 Базовая улица, д.5 литера А

9 500 Р

Базовая улица, д.5 литера А

офис 120 кв м, этаж 1/5 улица Ушинского, 40

300 000 Р

улица Ушинского, 40

офис 308 кв м, этаж 4/4 ул Комсомольская, 6

200 020 Р

ул Комсомольская, 6

офис 28 кв м, этаж 1/3 Флотская ул, 18

24 480 Р

Флотская ул, 18

офис 300 кв м, этаж 1/3 Комсомольская улица, д.8

390 000 Р

Комсомольская улица, д.8

офис 52 кв м, этаж 1/4 Советская улица, д.75

35 000 Р

Советская улица, д.75

офис 60 кв м, этаж 4/6 Чайковского улица, д.40а

96 761 Р

Чайковского улица, д.40а

офис 362.9 кв м, этаж 1/2 Победы улица, д.22Б

300 000 Р

Победы улица, д.22Б

офис 15 кв м, этаж 2/5 проспект Октября, 56

13 000 Р

проспект Октября, 56

Ипотечный калькулятор

Стоимость недвижимости

Первоначальный взнос

Ставка

Срок

Подберем квартиру в новостройке!

Низкие ставки по ипотеке с ежемесячным платежом ниже аренды похожей квартиры.

График средних цен по аренде офисов в Ярославле

Тип недвижимости Средн. цена м2 Изменение с 07.11.2024 Разброс цен Дата
Офисная недвижимость 956 руб. + 151 руб. 9 000 ... 1 120 000 руб. за объект 14.10.25
952 руб. + 147 руб. 8 500 ... 1 120 000 руб. за объект 30.09.25
916 руб. + 112 руб. 7 600 ... 1 150 000 руб. за объект 16.09.25
901 руб. + 96 руб. 7 600 ... 1 150 000 руб. за объект 02.09.25
910 руб. + 106 руб. 7 600 ... 1 150 000 руб. за объект 19.08.25
908 руб. + 103 руб. 7 600 ... 1 200 000 руб. за объект 05.08.25